|
Tobias
Lammerich ARCHITEKT
News
Büro
Projekte
Kontakt
Energieberatung
Impressum
Home
Wettbewerbe
Uhland-Gymnasium Tübingen, Sanierung
und Erweiterung
Anerkennung (4.
Platz)
2009

Ansicht
Süd

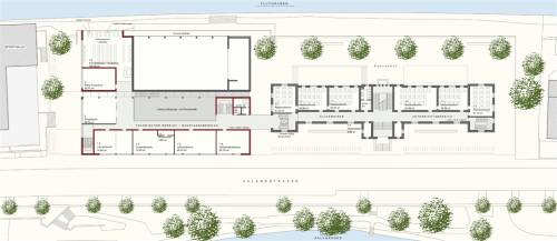
Grundriss
Erdgeschoss

Grundriss 1.
Obergeschoss

Grundriss 2.
Obergeschoss

Längsschnitt Querschnitt

Anischt
Ost
Ansicht
West

Ansicht
Nord
Eingangsseite

Eingangs-
und
Pausenhalle Bibliothek

|