|
Tobias Lammerich ARCHITEKT
News
Büro
Projekte
Kontakt
Energieberatung
Impressum
Home
Wettbewerbe
Kunstmuseum St. Gallen,
Erweiterung
2001 -
2002

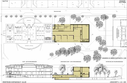
Grundriss Sockelgeschoss - Längsschnitt

Grundriss
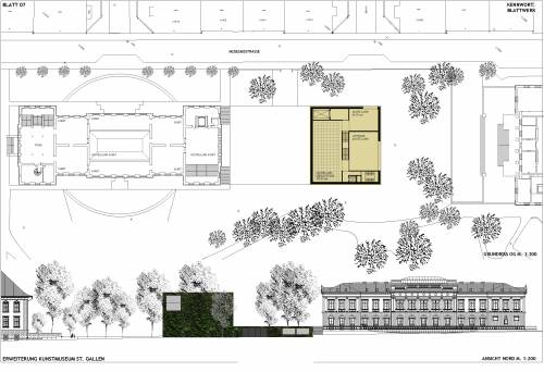
Erdgeschoss - Ansicht Süd

Grundriss
Obergeschoss - Ansicht Nord

Grundriss
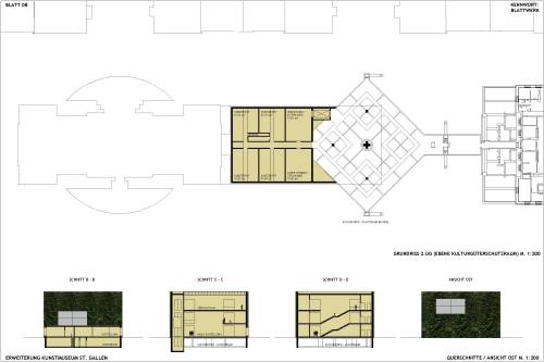
Depotgeschoss - Querschnitte - Ansichten West /
Ost
|