|
Tobias Lammerich ARCHITEKT
News
Büro
Projekte
Kontakt
Energieberatung
Impressum
Home
Wettbewerbe
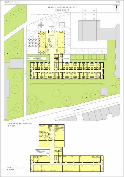
Jugendgästehaus Köln-Deutz,
Neubau
2. Preis
1999

Außenperspektive

Grundrisse
Erdgeschoss und Untergeschoss

Schnitt
A-A - Ansicht Nord - Grundriss 1.OG

Schnitt
B-B - Ansicht West - Grundriss 2. Obergeschoss

Schnitt
C-C - Ansicht Ost - Grundriss 3. Obergeschoss

Schnitt
D-D - Ansicht Süd - Grundriss 4. Obergeschoss

|